Plans submitted to convert historic Leamington Spa offices into new homes
By Nadia Sayed 8th Oct 2025
By Nadia Sayed 8th Oct 2025

A former office building in Leamington Spa could be transformed into three residential apartments under newly submitted plans.
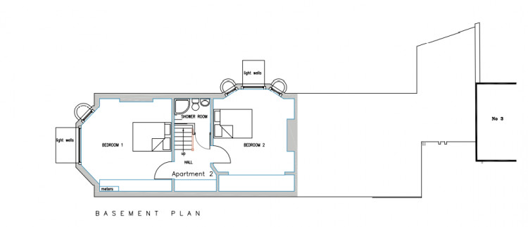
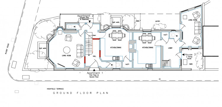
The development, located on the corner of Highfield Terrace and Rugby Road, comprises a three-storey semi-detached property, 1 Highfield House.
The planning application states: "Whilst not listed, it is situated within the Leamington Spa Conservation Area and is an attractive brick-built Victorian building."
According to the planning application, the scheme has been designed to offer a "high quality living environment for future residents.

The application states: "Every habitable room is served by at least one primary window offering outlook and maximising natural light into the space."
Highfield House is located within the Leamington Spa Conservation Area, but the proposal makes no external alterations to the building, which the planning documents states means will not impact the historic character and appearance of the area.

When the applicant purchased the property in 1987, it was an off-licence and dwelling and has since being converted to an offic
The planning documents conclude approval "should be granted", due to the alignment with local and national planning requirements and the application representation of a "sustainable and beneficial reuse of a vacant building."
View the full plans here.

CHECK OUT OUR Jobs Section HERE!
leamington vacancies updated hourly!
Click here to see more: leamington jobs
Share: