Changes proposed for historic Leamington building including solar panels and new signage
By Nadia Sayed 11th Nov 2025
By Nadia Sayed 11th Nov 2025
An application has been submitted for the installation of solar panels on the roof of a historic building in Leamington, alongside alterations to its frontage.
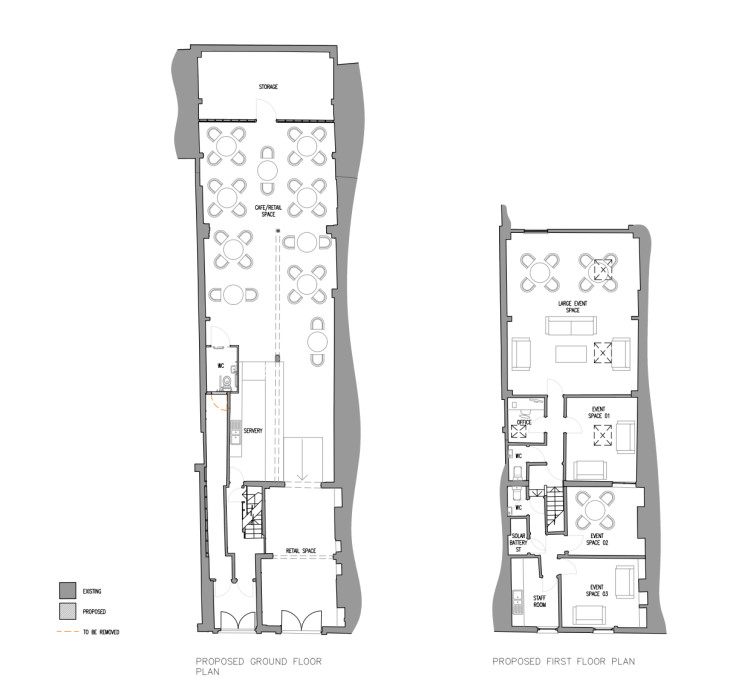
The site, situated on Park Street within the Royal Leamington Spa Conservation Area, houses the store Bricks 'n' Pieces.
This proposal was put forward by Rickett Architects Ltd seeks to make sustainable and modest improvements to the mixed-use, 19th-century property without compromising its architectural integrity.
The plans include transforming the ground floor for commercial and food and drink purposes, while the first floor is intended for Sui Generis use.

According to the planning documents:"The application site is situated on Park Street, presently comprising no statutory Listed Buildings." Additionally, the project involves minor changes to the front of the building, such as new signage and repainting.
The modifications proposed for the front elevation of the store, are anticipated to have no detrimental impact on nearby Listed Buildings.
It was concluded in the planning application that the "minor alterations" to the frontage and the introduction of solar panels to the building "meet all the relevant national and local criteria and that the proposed changes do not equate to harm to the Royal Leamington Spa Conservation Area, or statutory or non-statutory listed heritage assets."
The full plans can be viewed here.

CHECK OUT OUR Jobs Section HERE!
leamington vacancies updated hourly!
Click here to see more: leamington jobs
Share: