Property of the Week: 'Great investment opportunity' - Development site in central Leamington for £1m
This week, we have looked at a 14-bedroom property on Chandos Street, Leamington Spa currently available for £1,000,000
By Nadia Sayed 27th Dec 2025
Looking for a new home in Leamington, or just feeling a bit nosey?
Then look no further than our Property of the Week features, which will be showcasing the most interesting homes for sale right now on our Leamington Nub News Property page.
Our property for this week comes courtesy of our exclusive property sponsor Complete Sales and Lettings.
This week, we have looked at a 14-bedroom property on Chandos Street in Leamington Spa currently available for £1,000,000.
Fancy putting an offer in on this home? Or want to find out more about what you could afford? Why not contact Kenilworth-based GAM Home Loan Specialists for some free mortgage advice!

This property is a great investment opportunity and a "prime central Leamington Spa development site."
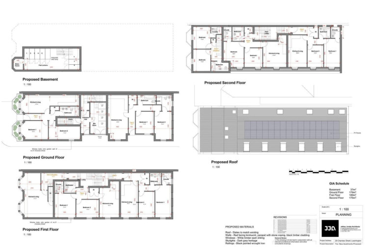
The brochure describes the property as : "An exceptional opportunity to acquire a prime period building in the heart of Royal Leamington Spa, complete with full planning permission for conversion into seven luxury two-bedroom apartments, including the addition of a second floor.
"This impressive former restaurant and five-bedroom residence, set on Chandos Street, with approved plans creating a total developed area of 6,038 sq ft (561 sqm).

"Perfectly positioned just a short walk from The Parade, Royal Priors Shopping Centre, and the town's array of boutiques, cafés, and bars, the location is ideal for both professionals and down sizers seeking premium town-centre living.
"With a projected GDV of £2.4 million, this development represents a rare and attractive investment opportunity in one of Warwickshire's most sought-after and consistently performing property markets."

Unit breakdown after build:
- 7 x 2-Bedroom Flats
- Flat 1 - 65 sqm / 700 sqft
- Flat 2 - 76 sqm / 818 sqft
- Flat 3 - 80 sqm / 861 sqft
- Flat 4 - 61 sqm / 656 sqft
- Flat 5 - 63 sqm / 678 sqft
- Flat 6 - 60 sqm / 646 sqft
- Flat 7 - 60 sqm / 646 sqft
- Habitable Space - 465 sqm / 5,005 sqft
- Communal Space - 96 sqm / 1,033 sqft
- Total Space - 561 sqm / 6,038 sqft
Email [email protected] for the sales pack.
Share: