Plans for new eight-unit apartment block in Leamington revealed
By Nadia Sayed 12th Mar 2026
An application has been submitted for a residential apartment block in Leamington Spa.
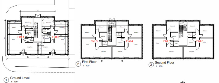
The application submitted by Shaftesbury Design Practice, includes an apartment block of eight self-contained units, each with two bedrooms.
The site, located at the rear end of Southborough Terrace, is currently "underutilised and presents an opportunity for sensitive redevelopment to provide much-needed housing."
According to the application: "The design draws inspiration from the surrounding Victorian terraces, using brickwork as the primary material."
Southborough Terrace forms part of a late 19th-century residential area, with strong historic character defined by red-brick terraces, slate roofs, and consistent building lines.
The site itself is not listed but lies within the setting of a Conservation Area.

The plans for the new block will be three storey and include traditional brickwork, sympathetic roof forms, and vertically proportioned windows "ensures the development harmonises with the historic context."
Key views along Southborough Terrace and Ranelagh Street will be preserved, with the new block largely screened by existing built form.
The site lies within the setting of a Conservation Area. The Conservation Area Appraisal identifies the area's special interest as: "An area with good examples of domestic architecture from the late Victorian era, contributing to the present character of the area."
An application has been submitted for the development of a residential apartment block in Leamington Spa.
The proposal, put forward by the Shaftesbury Design Practice, outlines the construction of a building comprising eight self-contained units, each featuring two bedrooms.

Situated at the rear of Southborough Terrace, the site is currently "underutilised and presents an opportunity for sensitive redevelopment to provide much-needed housing."
According to the application, the design takes inspiration from the surrounding Victorian terraces, prominently featuring brickwork as its primary material.
Southborough Terrace is part of a late 19th-century residential area, characterised by its strong historical elements, including red-brick terraces, slate roofs, and uniform building lines.
Although the site itself is not listed, it is situated within the setting of a Conservation Area.
The plans for the new block detail a three-storey structure incorporating traditional brickwork, sympathetic roof forms, and vertically proportioned windows, ensuring the development aligns with the historic context.
Key views along Southborough Terrace and Ranelagh Street are to be preserved, with the new block being largely screened by existing structures.

The site lies within the setting of a Conservation Area. The Conservation Area Appraisal identified the area's special interest as: "An area with good examples of domestic architecture from the late Victorian era, contributing to the present character of the area."
In terms of parking, the plans state several measures will be in place to "ensure minimal impact on surrounding streets and support sustainable travel, the following measures are proposed."
There will be six on-site parking spaces, including: e4 resident bays (bookable termly/annually), one disabled-accessible bay, one car club space (retained for minimum 2 years) and 10 secure cycle spaces.
View the full plans here.
CHECK OUT OUR Jobs Section HERE!
leamington vacancies updated hourly!
Click here to see more: leamington jobs
Share: